










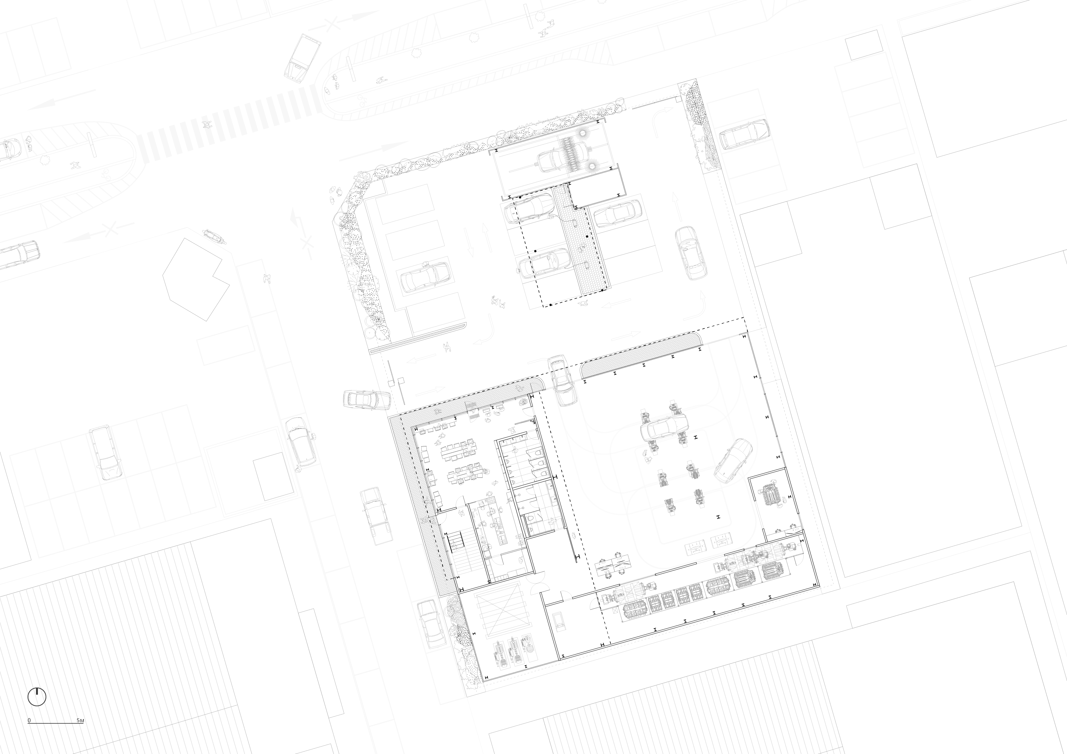
LOCATION
Anyang, Gyeonggi-do
STATUS
Completed, 2024
CLIENT
PIT IN
BUILDING AREA
914.14 ㎡
GROSS FLOOR AREA
1,214.62 ㎡
SITE AREA
1,781.30 ㎡
TEAM
Architect : Ondo Project Architects
PHOTOGRAPHY
Kyungsub Shin
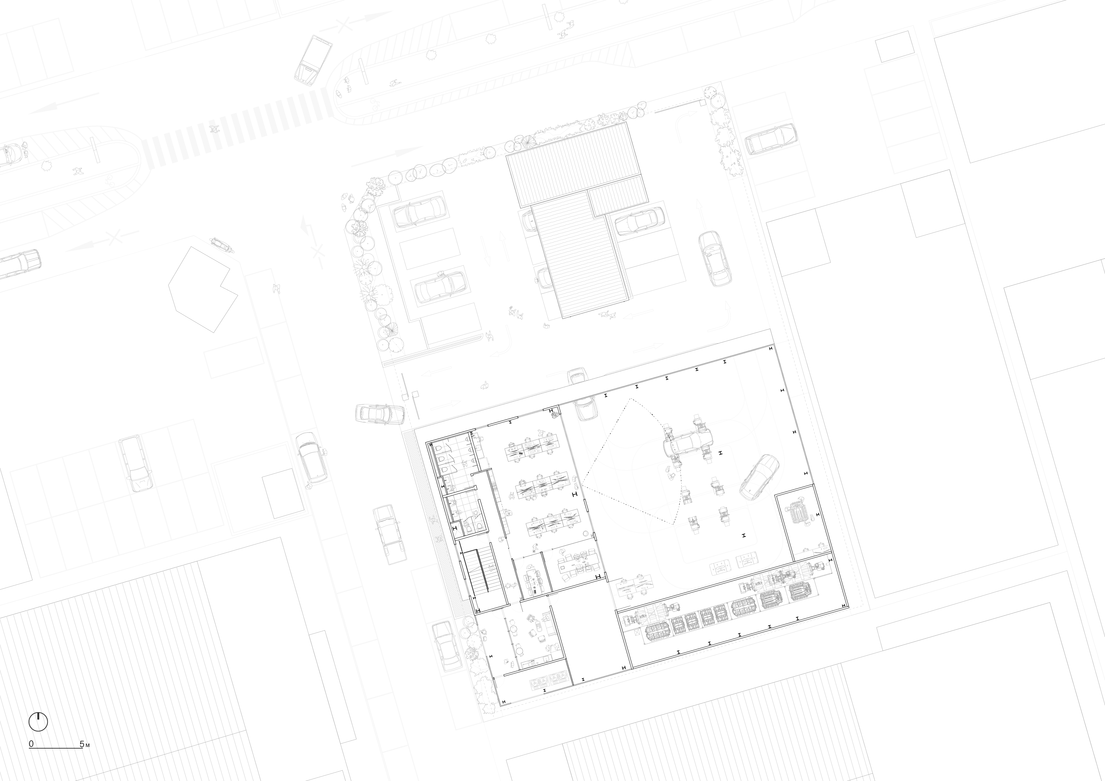
LOCATION
Anyang, Gyeonggi-do
STATUS
Completed, 2024
CLIENT
PIT IN
BUILDING AREA
914.14 ㎡
GROSS FLOOR AREA
1,214.62 ㎡
SITE AREA
1,781.30 ㎡
TEAM
Architect : Ondo Project Architects
PHOTOGRAPHY
Kyungsub Shin