






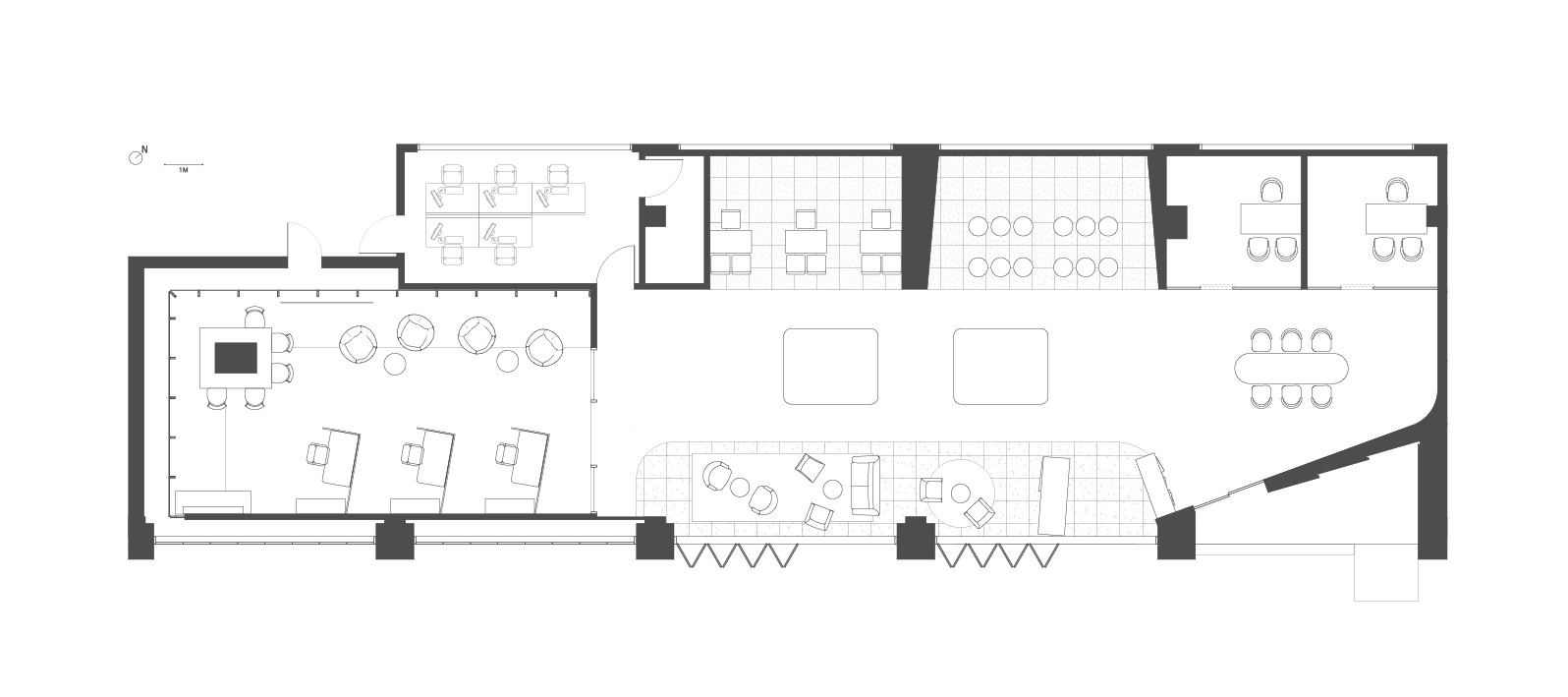
LOCATION
Gangnam, Seoul
STATUS
Completed, 2020
CLIENT
Donghoon
GROSS FLOOR AREA
333.24㎡
TEAM
Architect : Ondo Project Architects
PHOTOGRAPHY
Donggyu Kim
LOCATION
Gangnam, Seoul
STATUS
Completed, 2020
CLIENT
Donghoon
GROSS FLOOR AREA
333.24㎡
TEAM
Architect : Ondo Project Architects
PHOTOGRAPHY
Donggyu Kim