








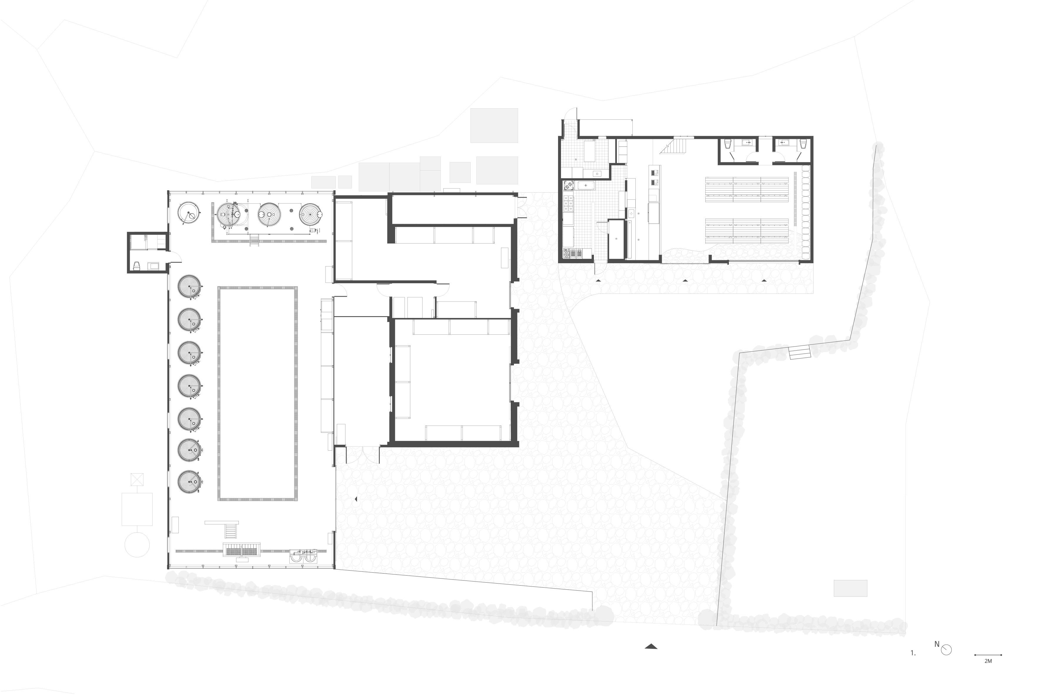
In the old tangerine warehouse of Aewol, Jeju—a structure that retains the local climate and soul even after fulfilling its original purpose—we discovered the ‘stratification of time.’ We established the preservation of the building's raw textures and rugged materiality as our primary design principle, precisely layering modern sensibilities and human warmth upon this solid trajectory of time.
The curtain wall, serving as an architectural device, deconstructs the existing enclosed materiality to dissolve boundaries, while large-scale folding doors invite the breath of the seasons deep into the interior. Consequently, the space evolves beyond its functional role of beer production, becoming a flexible junction where local historical context and contemporary lifestyles intersect.
Much like the breeze that flows over Jeju’s stone walls, this space erases the physical boundaries between inside and out, creating a place where anyone can linger and immerse themselves in the culture of craft beer. We propose that this site becomes a 'Platform for Regeneration,' where the past and present coexist.